
Gru a ponte monotrave elettrica di tipo europeo a sollevamento europeo
La gru a ponte a trave singola europea è un macchinario di sollevamento compatto progettato e fabbricato in stretta conformità con lo standard FEM e DIN, che presenta una tecnologia avanzata e un design accattivante. Diviso in tipo generale e tipo di sospensione, che supporta l'uso di un paranco elettrico standard europeo, adatto per la movimentazione di materiali per officine e magazzini, assemblaggio di precisione di pezzi di grandi dimensioni e altri luoghi.
Gru a ponte monotrave elettrica di tipo europeo a sollevamento europeo
Breve descrizione:
La gru a ponte a trave singola europea è un macchinario di sollevamento compatto progettato e fabbricato in stretta conformità con lo standard FEM e DIN, che presenta una tecnologia avanzata e un design accattivante. Diviso in tipo generale e tipo di sospensione, che supporta l'uso di un paranco elettrico standard europeo, adatto per la movimentazione di materiali per officine e magazzini, assemblaggio di precisione di pezzi di grandi dimensioni e altri luoghi.
Potrebbe essere ampiamente utilizzato nella produzione di macchinari, metallurgia, petrolio, pietrificazione, porto, ferrovia, aviazione civile, industria alimentare, fabbricazione di carta, edilizia, industrie di elettronica, magazzino e altre situazioni di movimentazione di materiali, in particolare. applicato alla movimentazione di materiali che richiedono un posizionamento preciso, componenti di grandi dimensioni e una precisa situazione di assemblaggio.
Immagini dettagliate:
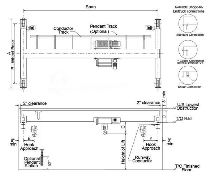
Disegno schizzo:
Parametri tecnici:
campata | m | 7.5 | 10.5 | 13.5 | 16,5 | 19.5 | 22.5 | 25.5 |
Capacità | t | 1 ~ 12.5t | ||||||
Peso totale | kg | 1781 ~ 12086 | ||||||
Peso del carrello | kg | 405 ~ 740 | ||||||
Max. Carico della ruota | kn | 13.5 ~ 90.94 | ||||||
Rotaia di viaggio | P24 ~ P43 | |||||||
Velocità di sollevamento | m / min | 0,8 / 5 | 0,8 / 5 | 0,8 / 5 | 0,8 / 5 | 0,8 / 5 | 0,8 / 5 | 0,8 / 5 |
Altezza di sollevamento | m | ≥ 6 | ≥ 6 | ≥ 6 | ≥ 6 | ≥ 6 | ≥ 6 | ≥ 6 |
Potenza totale del motore | kW | 4.31 | 4.31 | 4.31 | 4.31 | 4.67 | 4.67 | 4.67 |
Velocità della gru | m / min | 3-30 | 3-30 | 3-30 | 3-30 | 3-30 | 3-30 | 3-30 |
Velocità del carrello | m / min | 2-20 | 2-20 | 2-20 | 2-20 | 2-20 | 2-20 | 2-20 |
Dovere di lavoro | M5 / A5 |